Our Products
Contact for all your piping needs
Email Us
Looking for Raised Face Lap Joint Flanges, LJRF Flange, LJFF Flange, EN 1092-2 PN16 Lap Joint Flange Dimensions, ASME B16.47 / ANSI B16.5 LJ Flange, MSS SP-44 Lap Joint Flange, DIN 2642 Lap Joint Flange.
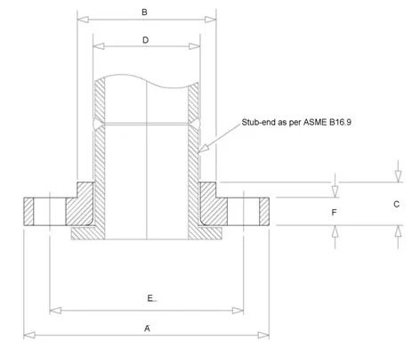
Bhavani Industries is a leading manufacturer and supplier of high-quality Lap Joint Flanges (LJ Flanges), delivering reliable solutions for piping systems that require easy disassembly, inspection, or frequent alignment. LJ Flanges are designed to be used with a stub end, which allows the flange to rotate freely around the pipe for effortless bolt alignment. This makes them ideal for low-pressure, non-critical applications across various industries.
LJ Flanges manufactured by Bhavani Industries conform to global standards such as ASME B16.5, ANSI, and MSS-SP-44, supporting pressure classes ranging from 150 to 900. These flanges are typically Flat Face (FF) and are offered in a wide selection of materials including carbon steel (ASTM A105), stainless steel (ASTM A182 F304/F316), and low-temperature carbon steel (ASTM A350 LF2). In this design, the stub end is welded to the pipe while the flange remains loose, enabling easy maintenance, rotation, and bolt-hole alignment in tight spaces.
Available in sizes from ½ inch to 24 inches, Lap Joint Flanges are commonly used in water treatment facilities, chemical processing plants, food and beverage industries, shipbuilding, and pharmaceutical pipelines. Their design allows for reduced material costs, especially in systems using exotic alloys, as only the stub end needs to match the pipe material. With features like easy installation, reusability, and alignment flexibility, LJ Flanges from Bhavani Industries are an excellent choice for efficient, cost-effective piping solutions.
Manufacturer Of All Sizes & Schedule Of Lap Joint Flange, PN16 PN10 Lapped Joint Flange, Class 150#, 300#, 600#, 900#, 1500#, 2500# Lap Joint Flange Dimensions, Loose Plate Flange, ASME B16.47 Series b Type A Lap Joint Flange.
Technical Index
Lap Joint Pipe Flange Standard Specifications
| Product Name | Lap Joint Flanges | Loose Flange | LJ / LJFF / LJRF Flange |
|---|---|
| Flange Size Availability | ½” (15 NB) to 48” (1200 NB) |
| Flange Pressure Ratings | Class 150, 300, 600, 900, 1500, 2500, PN6, PN10, PN16, PN25, PN40, PN64 |
| Applicable Flange Standards | ANSI/ASME B16.5, B16.47 Series A & B, B16.48, BS4504, BS 10, EN-1092, DIN, GOST, MSS SP-44, ISO70051, JISB2220, BS1560-3.1, API7S-15, API7S-43, API605 |
| Flange Facing Types | Raised Face (RF), Flat Face (FF), Ring Type Joint (RTJ), Lap Joint, Male & Female (M&F), Tongue & Groove (T&G) |
| Custom Fabrication | Manufactured as per AS, BS, ANSI, DIN, JIS standards | Custom designs available | Equal and Reducing Configurations |
| Material Test Certifications | EN 10204 3.1 & EN 10204 3.2 | Compliance with NACE MR0175, NACE MR0103 |
| Testing & Inspection Reports | 100% Radiography Test Report, EN 10204/3.1B, Raw Material Certification, Third-Party Inspection Reports |
| Testing Procedures | Hydrostatic Testing, Direct-Reading Spectrograph, Ultrasonic Flaw Detection, X-ray Examination, Magnetic Particle Inspection |
| Manufacturing Equipment | Hydraulic Press Machines, Induction Heating, Bending Machines, Sand-Blasting Units, CNC Machining, Beveling Machines |
| Flange Coating Options | Anti-Rust Paint, Black Oil Paint, Yellow Transparent Coating, Zinc Plating, Hot-Dip & Cold-Dip Galvanization |
| Material Sourcing Regions | India, USA, Japan, West Europe, South Korea |
| Global Export Markets | UAE, Jordan, Bahrain, Kuwait, Oman, Qatar, Saudi Arabia, USA, Singapore, Malaysia, Azerbaijan, Armenia, Georgia, Egypt, Nigeria, South Africa, Kenya, Morocco, Ethiopia, Ghana, Tanzania, Sudan, Uganda, Angola |
Raised Face Lap Joint Flange Standards
| ANSI/ASME B16.47 Flanges | ANSI/ASME B16.36 Flanges | ANSI/ASME B16.5 Flanges | Pr. EN1902-1 Flanges |
| DIN Flanges | JIS Flanges | BS 4504 Flanges | BS 10 Flanges |
| MSS SP-44 Flanges | JIS B2220 Flanges | KS B1503 Flanges | UNI Flanges |
| SABS/SANS 1123 Flanges | AS 2129, AS 4087 Flanges | ISO 9624, ISO 7005-1 Flanges | AWWA Flanges Standard |
| GOST Standard Flanges | API Flanges | AS/ANZ 4331.1 Flanges | Series A Flange |
| Series B Flange | SAE J518 Flanges | GB Flange | Norwegian Standard Flanges |
LJRF Flange Material Grades and Standards
| Stainless Steel Lap Joint Flanges | ASTM/ASME A/SA182: F304, F304L, F316, F316L | ASTM/ASME A/SA351: CF3, CF3M, CF8, CF8M | DIN: 1.4306, 1.4301, 1.4404, 1.4401, 1.4408, 1.4308, 1.4409 |
|---|---|
| Duplex Steel Lap Joint Flanges | ASTM A182: S31803 / S32205 | Grades: F51, F52, F53, F54, F55, F57, F59, F60, F61 |
| Super Duplex Steel Lap Joint Flanges | ASTM A182: S32750 / S32760 | Grades: F51, F52, F53, F54, F55, F57, F59, F60, F61 |
| Copper Nickel Lap Joint Flanges | ASTM/ASME SB 61 / 62 / 151 / 152 | UNS: C70600 (90/10), C71500 (70/30), C71640 |
| Titanium Lap Joint Flanges | ASTM B381 / ASME SB381: Gr.1, Gr.2, Gr.4, Gr.5, Gr.7 | UNS: R50250 (Gr.1), R50400 (Gr.2), R50550 (Gr.3), R50700 (Gr.4), R52400 (Gr.7), R53400 (Gr.12), R56320 (Gr.9), R56400 (Gr.5) |
| Copper Lap Joint Flanges | Grades: TP1, TP2, C10100 – C12300, TU1, TU2, C12500, C14200, C14500 – C14530, C17200, C19200, C21000, C23000, C26000, C27000, C28000, C33000, C37000, C44300 – C44500, C60800, C63020, C68700, C70400, C70600, C71500, C71640 |
| Incoloy Lap Joint Flanges | ASTM B564 / ASME SB564: Incoloy 800, 800H, 800HT (UNS N08800), 825 (UNS N08825), 925 |
| Inconel Lap Joint Flanges | ASTM B564 / ASME SB564: Inconel 600, 601, 625, 718, 783, 690, X750 |
| Nickel Alloy Lap Joint Flanges | ASTM B564 / ASME SB564: Nickel 200, Nickel 201, Nickel 205, Nickel 205LC |
| Hastelloy Lap Joint Flanges | ASTM B564 / ASME SB564: Hastelloy C276 (UNS N10276), C22 (UNS N06022), C4, C2000, B2, B3, X |
| Monel Lap Joint Flanges | ASTM B564 / ASME SB564: Monel 400 (UNS N04400), Monel 500 (UNS N05500) |
| Carbon Steel Lap Joint Flanges | ASTM/ASME A/SA105, A/SA105N, A/SA216-WCB | DIN: 1.0460, 1.0402, 1.0619 | ASTM A105N, ASTM A350 LF2, ASTM A694 (F52, F56, F60, F65, F70, F80) |
| Alloy Steel Lap Joint Flanges | ASTM A182 / ASME SA182: F5, F9, F11, F12, F22, F91 |
| Alloy 20 Lap Joint Flanges | ASTM B462 / ASME SB462: Carpenter® 20 Alloy, Alloy 20Cb-3 |
| SMO 254 Lap Joint Flanges | ASTM A182 / ASME SA182: SMO 254/6Mo, UNS S31254, DIN 1.4547 |
| Aluminium Lap Joint Flanges | Grades: 5052, 6061, 6063, 2017, 7075 |
| Brass Lap Joint Flanges | Grades: 3602, 2604, H59, H62 |
| Other Specialty Lap Joint Flanges | Materials: Tin Bronze, Aluminum Bronze, Lead Bronze, Nimonic 75, Nimonic 80A, Nimonic 90, AISI 4140, AISI 4130, Mild Steel, Al6XN |
ASME B16.5 Flanges Types
ANSI B16.5 LJFF Flange Industries & Applications
Class 150 Lap Joint Flange Dimensions
| Size in Inch | Size in mm | Outer Diameter | Flange Thick. | Lapped Thick. | Lapped ID | PCD | Lapped Thick. | Lapped Radius | No of Bolts | Bolt Size UNC | Machine Bolt Length | RF Stud Length | Hole Size | ISO Stud Size | Weight in kg |
|---|---|---|---|---|---|---|---|---|---|---|---|---|---|---|---|
| A | B | C | D | E | G | ||||||||||
| 1/2 | 15 | 90 | 30 | 16 | 22.9 | 60.3 | 11.2 | 3 | 4 | 1/2 | 50 | 55 | 5/8 | M14 | 0.8 |
| 3/4 | 20 | 100 | 38 | 16 | 28.2 | 69.9 | 12.7 | 3 | 4 | 1/2 | 50 | 65 | 5/8 | M14 | 0.9 |
| 1 | 25 | 110 | 49 | 17 | 34.9 | 79.4 | 14.3 | 3 | 4 | 1/2 | 55 | 65 | 5/8 | M14 | 0.9 |
| 1 1/4 | 32 | 115 | 59 | 21 | 43.7 | 88.9 | 15.9 | 5 | 4 | 1/2 | 55 | 70 | 5/8 | M14 | 1.4 |
| 1 1/2 | 40 | 125 | 65 | 22 | 50 | 98.4 | 17.5 | 6 | 4 | 1/2 | 65 | 70 | 5/8 | M14 | 1.4 |
| 2 | 50 | 150 | 78 | 25 | 62.5 | 120.7 | 19.1 | 8 | 4 | 5/8 | 70 | 85 | 3/4 | M16 | 2.3 |
| 2 1/2 | 65 | 180 | 90 | 29 | 75.4 | 139.7 | 22.3 | 8 | 4 | 5/8 | 75 | 90 | 3/4 | M16 | 3.2 |
| 3 | 80 | 190 | 108 | 30 | 91.4 | 152.4 | 23.9 | 10 | 4 | 5/8 | 75 | 90 | 3/4 | M16 | 3.7 |
| 3 1/2 | 90 | 215 | 122 | 32 | 104.1 | 177.8 | 23.9 | 11 | 8 | 5/8 | 75 | 90 | 3/4 | M16 | 5 |
| 4 | 100 | 230 | 135 | 33 | 116.8 | 190.5 | 23.9 | 11 | 8 | 5/8 | 75 | 90 | 3/4 | M16 | 5.9 |
| 5 | 125 | 255 | 164 | 36 | 144.4 | 215.9 | 23.9 | 11 | 8 | 3/4 | 85 | 95 | 7/8 | M20 | 6.8 |
| 6 | 150 | 280 | 192 | 40 | 171.4 | 241.3 | 25.4 | 13 | 8 | 3/4 | 85 | 100 | 7/8 | M20 | 8.6 |
| 8 | 200 | 345 | 246 | 44 | 222.2 | 298.5 | 28.6 | 13 | 8 | 3/4 | 90 | 110 | 7/8 | M20 | 13.7 |
| 10 | 250 | 405 | 305 | 49 | 277.4 | 362 | 30.2 | 13 | 12 | 7/8 | 100 | 115 | 1 | M24 | 19.5 |
| 12 | 300 | 485 | 365 | 56 | 328.2 | 431.8 | 31.8 | 13 | 12 | 7/8 | 100 | 120 | 1 | M24 | 29 |
| 14 | 350 | 535 | 400 | 79 | 360.2 | 476.3 | 35 | 13 | 12 | 1 | 115 | 135 | 1 1/8 | M27 | 41 |
| 16 | 400 | 595 | 457 | 87 | 411.2 | 539.8 | 36.6 | 13 | 16 | 1 | 115 | 135 | 1 1/8 | M27 | 54 |
| 18 | 450 | 635 | 505 | 97 | 462.3 | 577.9 | 39.7 | 13 | 16 | 1 1/8 | 125 | 145 | 1 1/4 | M30 | 59 |
| 20 | 500 | 700 | 559 | 103 | 514.4 | 635 | 42.9 | 13 | 20 | 1 1/8 | 140 | 160 | 1 1/4 | M30 | 75 |
| 24 | 600 | 815 | 663 | 111 | 616 | 749.3 | 47.9 | 13 | 20 | 1 1/4 | 150 | 170 | 1 3/8 | M33 | 100 |
Class 300 Lap Joint Flange Dimensions
| Size in Inch | Size in mm | Outer Diameter | Flange Thick. | Lapped Thick. | Lapped ID | PCD | Lapped Thick. | Lapped Radius | No of Bolts | Bolt Size UNC | Machine Bolt Length | RF Stud Length | Hole Size | ISO Stud Size | Weight in kg |
|---|---|---|---|---|---|---|---|---|---|---|---|---|---|---|---|
| A | B | C | D | E | G | ||||||||||
| 1/2 | 15 | 95 | 38 | 22 | 22.9 | 66.7 | 14.3 | 3 | 4 | 1/2 | 55 | 65 | 5/8 | M14 | 1.2 |
| 3/4 | 20 | 115 | 48 | 25 | 28.2 | 82.6 | 15.9 | 3 | 4 | 5/8 | 65 | 75 | 3/4 | M16 | 1.4 |
| 1 | 25 | 125 | 54 | 27 | 34.9 | 88.9 | 17.5 | 3 | 4 | 5/8 | 65 | 75 | 3/4 | M16 | 1.4 |
| 1 1/4 | 32 | 135 | 64 | 27 | 43.7 | 98.4 | 19.1 | 5 | 4 | 5/8 | 70 | 85 | 3/4 | M16 | 1.8 |
| 1 1/2 | 40 | 155 | 70 | 30 | 50 | 114.3 | 20.7 | 6 | 4 | 3/4 | 75 | 90 | 7/8 | M20 | 2.7 |
| 2 | 50 | 165 | 84 | 33 | 62.5 | 127 | 22.3 | 8 | 8 | 5/8 | 75 | 90 | 3/4 | M16 | 3.2 |
| 2 1/2 | 65 | 190 | 100 | 38 | 75.4 | 149.2 | 25.4 | 8 | 8 | 3/4 | 85 | 100 | 7/8 | M20 | 4.6 |
| 3 | 80 | 210 | 117 | 43 | 91.4 | 168.3 | 28.6 | 10 | 8 | 3/4 | 90 | 110 | 7/8 | M20 | 5.9 |
| 3 1/2 | 90 | 230 | 133 | 44 | 104.1 | 184.2 | 30.2 | 11 | 8 | 3/4 | 95 | 110 | 7/8 | M20 | 7.7 |
| 4 | 100 | 255 | 146 | 48 | 116.8 | 200 | 31.8 | 11 | 8 | 3/4 | 95 | 115 | 7/8 | M20 | 10 |
| 5 | 125 | 280 | 178 | 51 | 144.4 | 235 | 35 | 11 | 8 | 3/4 | 110 | 120 | 7/8 | M20 | 12.7 |
| 6 | 150 | 320 | 206 | 52 | 171.4 | 269.9 | 36.6 | 13 | 12 | 3/4 | 110 | 120 | 7/8 | M20 | 17.7 |
| 8 | 200 | 380 | 260 | 62 | 222.2 | 330.2 | 41.3 | 13 | 12 | 7/8 | 120 | 140 | 1 | M24 | 26 |
| 10 | 250 | 445 | 321 | 95 | 277.4 | 387.4 | 47.7 | 13 | 16 | 1 | 140 | 160 | 1 1/8 | M27 | 36 |
| 12 | 300 | 520 | 375 | 102 | 328.2 | 450.8 | 50.8 | 13 | 16 | 1 1/8 | 145 | 170 | 1 1/4 | M30 | 52 |
| 14 | 350 | 585 | 425 | 111 | 360.2 | 514.4 | 54 | 13 | 20 | 1 1/8 | 160 | 180 | 1 1/4 | M30 | 75 |
| 16 | 400 | 650 | 483 | 121 | 411.2 | 571.5 | 57.2 | 13 | 20 | 1 1/4 | 165 | 190 | 1 3/8 | M33 | 86 |
| 18 | 450 | 710 | 533 | 130 | 462.3 | 628.6 | 60.4 | 13 | 24 | 1 1/4 | 170 | 195 | 1 3/8 | M33 | 113 |
| 20 | 500 | 775 | 587 | 140 | 514.4 | 685.8 | 63.5 | 13 | 24 | 1 1/4 | 185 | 205 | 1 3/8 | M33 | 143 |
| 24 | 600 | 915 | 702 | 153 | 616 | 812.8 | 69.9 | 13 | 24 | 1 1/2 | 205 | 230 | 1 5/8 | M39 | 216 |
Class 400 Lap Joint Flange Dimensions
| Size in Inch | Size in mm | Outer Diameter | Flange Thick. | Lapped Thick. | Lapped ID | PCD | Lapped Thick. | Lapped Radius | No of Bolts | Bolt Size UNC | RF Stud Length | Hole Size | ISO Stud Size | Weight in kg |
|---|---|---|---|---|---|---|---|---|---|---|---|---|---|---|
| A | B | C | D | E | G | |||||||||
| 1/2 | 15 | 95 | 38 | 22 | 22.9 | 66.7 | 14.3 | 3 | 4 | 1/2 | 75 | 5/8 | M14 | 1.3 |
| 3/4 | 20 | 115 | 48 | 25 | 28.2 | 82.6 | 15.9 | 3 | 4 | 5/8 | 90 | 3/4 | M16 | 1.5 |
| 1 | 25 | 125 | 54 | 27 | 34.9 | 88.9 | 17.5 | 3 | 4 | 5/8 | 90 | 3/4 | M16 | 1.8 |
| 1 1/4 | 32 | 135 | 64 | 29 | 43.7 | 98.4 | 20.7 | 5 | 4 | 5/8 | 95 | 3/4 | M16 | 2.3 |
| 1 1/2 | 40 | 155 | 70 | 32 | 50 | 114.3 | 22.3 | 6 | 4 | 3/4 | 110 | 7/8 | M20 | 3.2 |
| 2 | 50 | 165 | 84 | 37 | 62.5 | 127 | 25.4 | 8 | 8 | 5/8 | 110 | 3/4 | M16 | 4.1 |
| 2 1/2 | 65 | 190 | 100 | 41 | 75.4 | 149.2 | 28.6 | 8 | 8 | 3/4 | 120 | 7/8 | M20 | 5.9 |
| 3 | 80 | 210 | 117 | 46 | 91.4 | 168.3 | 31.8 | 10 | 8 | 3/4 | 125 | 7/8 | M20 | 7.3 |
| 3 1/2 | 90 | 230 | 133 | 49 | 104.1 | 184.2 | 35 | 10 | 8 | 7/8 | 140 | 1 | M24 | 9.6 |
| 4 | 100 | 255 | 146 | 51 | 116.8 | 200 | 35 | 11 | 8 | 7/8 | 140 | 1 | M24 | 11.8 |
| 5 | 125 | 280 | 178 | 54 | 144.5 | 235 | 38.1 | 11 | 8 | 7/8 | 145 | 1 | M24 | 14.1 |
| 6 | 150 | 320 | 206 | 57 | 171.4 | 269.9 | 41.3 | 13 | 12 | 7/8 | 150 | 1 | M24 | 20 |
| 8 | 200 | 380 | 260 | 68 | 222.2 | 330 | 47.7 | 13 | 12 | 1 | 170 | 1 1/8 | M27 | 31 |
| 10 | 250 | 445 | 321 | 102 | 277.4 | 387.4 | 54 | 13 | 16 | 1 1/8 | 190 | 1 1/4 | M30 | 42 |
| 12 | 300 | 520 | 375 | 108 | 328.2 | 450.8 | 57.2 | 13 | 16 | 1 1/4 | 205 | 1 3/8 | M33 | 59 |
| 14 | 350 | 585 | 425 | 117 | 360.2 | 514.4 | 60.4 | 13 | 20 | 1 1/4 | 210 | 1 3/8 | M33 | 82 |
| 16 | 400 | 650 | 483 | 127 | 411.2 | 571.5 | 63.5 | 13 | 20 | 1 3/8 | 220 | 1 1/2 | M36 | 107 |
| 18 | 450 | 710 | 533 | 137 | 462.3 | 628.6 | 66.7 | 13 | 24 | 1 3/8 | 230 | 1 1/2 | M36 | 130 |
| 20 | 500 | 775 | 587 | 146 | 514.4 | 685.8 | 69.9 | 13 | 24 | 1 1/2 | 240 | 1 3/4 | M39 | 157 |
| 24 | 600 | 915 | 702 | 159 | 616 | 812.8 | 76.2 | 13 | 24 | 1 3/4 | 265 | 1 7/8 | M45 | 232 |
Class 600 Lap Joint Flange Dimensions
| Size in Inch | Size in mm | Outer Diameter | Flange Thick. | Lapped Thick. | Lapped ID | PCD | Lapped Thick. | Lapped Radius | No of Bolts | Bolt Size UNC | RF Stud Length | Hole Size | ISO Stud Size | Weight in kg |
|---|---|---|---|---|---|---|---|---|---|---|---|---|---|---|
| A | B | C | D | E | G | |||||||||
| 1/2 | 15 | 95 | 38 | 22 | 22.9 | 66.7 | 14.3 | 3 | 4 | 1/2 | 75 | 5/8 | M14 | 1.3 |
| 3/4 | 20 | 115 | 48 | 25 | 28.2 | 82.6 | 15.9 | 3 | 4 | 5/8 | 90 | 3/4 | M16 | 1.4 |
| 1 | 25 | 125 | 54 | 27 | 34.9 | 88.9 | 17.5 | 3 | 4 | 5/8 | 90 | 3/4 | M16 | 1.8 |
| 1 1/4 | 32 | 135 | 64 | 29 | 43.7 | 98.4 | 20.7 | 5 | 4 | 5/8 | 95 | 3/4 | M16 | 2.3 |
| 1 1/2 | 40 | 155 | 70 | 32 | 50 | 114.3 | 22.3 | 6 | 4 | 3/4 | 110 | 7/8 | M20 | 3.2 |
| 2 | 50 | 165 | 84 | 37 | 62.5 | 127 | 25.4 | 8 | 8 | 5/8 | 110 | 3/4 | M16 | 4.1 |
| 2 1/2 | 65 | 190 | 100 | 41 | 75.4 | 149.2 | 28.6 | 8 | 8 | 3/4 | 120 | 7/8 | M20 | 5.9 |
| 3 | 80 | 210 | 117 | 46 | 91.4 | 168.3 | 31.8 | 10 | 8 | 3/4 | 125 | 7/8 | M20 | 7.3 |
| 3 1/2 | 90 | 230 | 133 | 49 | 104.1 | 184.2 | 35 | 11 | 8 | 7/8 | 140 | 1 | M24 | 9.6 |
| 4 | 100 | 275 | 152 | 54 | 116.8 | 215.9 | 38.1 | 11 | 8 | 7/8 | 145 | 1 | M24 | 16.8 |
| 5 | 125 | 330 | 189 | 60 | 144.4 | 266.7 | 44.5 | 11 | 8 | 1 | 165 | 1 1/8 | M27 | 29 |
| 6 | 150 | 355 | 222 | 67 | 171.4 | 292.1 | 47.7 | 13 | 12 | 1 | 170 | 1 1/8 | M27 | 36 |
| 8 | 200 | 420 | 273 | 76 | 222.2 | 349.2 | 55.6 | 13 | 12 | 1 1/8 | 190 | 1 1/4 | M30 | 52 |
| 10 | 250 | 510 | 343 | 111 | 277.4 | 431.8 | 63.5 | 13 | 16 | 1 1/4 | 215 | 1 3/8 | M33 | 77 |
| 12 | 300 | 560 | 400 | 117 | 328.2 | 489 | 66.7 | 13 | 20 | 1 1/4 | 220 | 1 3/8 | M33 | 91 |
| 14 | 350 | 605 | 432 | 127 | 360.2 | 527 | 69.9 | 13 | 20 | 1 3/8 | 235 | 1 1/2 | M36 | 105 |
| 16 | 400 | 685 | 495 | 140 | 411.2 | 603.2 | 76.2 | 13 | 20 | 1 1/2 | 255 | 1 5/8 | M39 | 150 |
| 18 | 450 | 745 | 546 | 152 | 462.3 | 654 | 82.6 | 13 | 20 | 1 5/8 | 275 | 1 3/4 | M42 | 182 |
| 20 | 500 | 815 | 610 | 165 | 514.4 | 723.9 | 88.9 | 13 | 24 | 1 5/8 | 285 | 1 3/4 | M42 | 232 |
| 24 | 600 | 940 | 718 | 184 | 616 | 838.2 | 101.6 | 13 | 24 | 1 7/8 | 330 | 2 | M48 | 332 |
Class 900 Lap Joint Flange Dimensions
| Size in Inch | Size in mm | Outer Diameter | Flange Thick. | Lapped Thick. | Lapped ID | PCD | Lapped Thick. | Lapped Radius | No of Bolts | Bolt Size UNC | RF Stud Length | Hole Size | ISO Stud Size | Weight in kg |
|---|---|---|---|---|---|---|---|---|---|---|---|---|---|---|
| A | B | C | D | E | G | |||||||||
| 1/2 | 15 | 120 | 38 | 32 | 22.9 | 82.6 | 22.3 | 3 | 4 | 3/4 | 110 | 7/8 | M20 | 1.8 |
| 3/4 | 20 | 130 | 44 | 35 | 28.2 | 88.9 | 25.4 | 3 | 4 | 3/4 | 115 | 7/8 | M20 | 2.3 |
| 1 | 25 | 150 | 52 | 41 | 34.9 | 101.6 | 28.6 | 3 | 4 | 7/8 | 125 | 1 | M24 | 3.6 |
| 1 1/4 | 32 | 160 | 64 | 41 | 43.7 | 111.1 | 28.6 | 5 | 4 | 7/8 | 125 | 1 | M24 | 4.1 |
| 1 1/2 | 40 | 180 | 70 | 44 | 50 | 123.8 | 31.8 | 6 | 4 | 1 | 140 | 1 1/8 | M27 | 5.5 |
| 2 | 50 | 215 | 105 | 57 | 62.5 | 165.1 | 38.1 | 8 | 8 | 7/8 | 145 | 1 | M24 | 11.5 |
| 2 1/2 | 65 | 245 | 124 | 64 | 75.4 | 190.5 | 41.3 | 8 | 8 | 1 | 160 | 1 1/8 | M27 | 16.5 |
| 3 | 80 | 240 | 127 | 54 | 91.4 | 190.5 | 38.1 | 10 | 8 | 7/8 | 145 | 1 | M24 | 12 |
| 4 | 100 | 290 | 159 | 70 | 116.8 | 235 | 44.5 | 11 | 8 | 1 1/8 | 170 | 1 1/4 | M30 | 24 |
| 5 | 125 | 350 | 190 | 79 | 144.4 | 279.4 | 50.8 | 11 | 8 | 1 1/4 | 190 | 1 3/8 | M33 | 38 |
| 6 | 150 | 380 | 235 | 86 | 171.4 | 317.5 | 55.6 | 13 | 12 | 1 1/8 | 190 | 1 1/4 | M30 | 50 |
| 8 | 200 | 470 | 298 | 114 | 222.2 | 393.7 | 63.5 | 13 | 12 | 1 3/8 | 220 | 1 1/2 | M36 | 78 |
| 10 | 250 | 545 | 368 | 127 | 277.4 | 469.9 | 69.9 | 13 | 16 | 1 3/8 | 235 | 1 1/2 | M36 | 112 |
| 12 | 300 | 610 | 419 | 143 | 328.2 | 533.4 | 79.4 | 13 | 20 | 1 3/8 | 255 | 1 1/2 | M36 | 148 |
| 14 | 350 | 640 | 451 | 156 | 360.2 | 558.8 | 85.8 | 13 | 20 | 1 1/2 | 275 | 1 5/8 | M39 | 182 |
| 16 | 400 | 705 | 508 | 165 | 411.2 | 616 | 88.9 | 13 | 20 | 1 5/8 | 285 | 1 3/4 | M42 | 193 |
| 18 | 450 | 785 | 565 | 190 | 462.3 | 685.8 | 101.6 | 13 | 20 | 1 7/8 | 325 | 2 | M48 | 258 |
| 20 | 500 | 855 | 622 | 210 | 514.4 | 749.3 | 108 | 13 | 20 | 2 | 350 | 2 1/8 | M52 | 317 |
| 24 | 600 | 1040 | 749 | 267 | 616 | 901.7 | 139.7 | 13 | 20 | 2 1/2 | 440 | 2 5/8 | M64 | 608 |
Class 1500 Lap Joint Flange Dimensions
| Size in Inch | Size in mm | Outer Diameter | Flange Thick. | Lapped Thick. | Lapped ID | PCD | Lapped Thick. | Lapped Radius | No of Bolts | Bolt Size UNC | RF Stud Length | Hole Size | ISO Stud Size | Weight in kg |
|---|---|---|---|---|---|---|---|---|---|---|---|---|---|---|
| A | B | C | D | E | G | |||||||||
| 1/2 | 15 | 120 | 38 | 32 | 22.9 | 82.6 | 22.3 | 3 | 4 | 3/4 | 110 | 7/8 | M20 | 1.8 |
| 3/4 | 20 | 130 | 44 | 35 | 28.2 | 88.9 | 25.4 | 3 | 4 | 3/4 | 115 | 7/8 | M20 | 2.3 |
| 1 | 25 | 150 | 52 | 41 | 34.9 | 101.6 | 28.6 | 3 | 4 | 7/8 | 125 | 1 | M24 | 3.7 |
| 1 1/4 | 32 | 160 | 64 | 41 | 43.7 | 111.1 | 28.6 | 5 | 4 | 7/8 | 125 | 1 | M24 | 4.1 |
| 1 1/2 | 40 | 180 | 70 | 44 | 50 | 123.8 | 31.8 | 6 | 4 | 1 | 140 | 1 1/8 | M27 | 5.5 |
| 2 | 50 | 215 | 105 | 57 | 62.5 | 165.1 | 38.1 | 8 | 8 | 7/8 | 145 | 1 | M24 | 9.8 |
| 2 1/2 | 65 | 245 | 124 | 64 | 75.4 | 190.5 | 41.3 | 8 | 8 | 1 | 160 | 1 1/8 | M27 | 16.4 |
| 3 | 80 | 265 | 133 | 73 | 91.4 | 203.2 | 47.7 | 10 | 8 | 1 1/8 | 180 | 1 1/4 | M30 | 21.8 |
| 4 | 100 | 310 | 162 | 90 | 116.8 | 241.3 | 54 | 11 | 8 | 1 1/4 | 195 | 1 3/8 | M33 | 33 |
| 5 | 125 | 375 | 197 | 105 | 144.4 | 292.1 | 73.1 | 11 | 8 | 1 1/2 | 250 | 1 5/8 | M39 | 59 |
| 6 | 150 | 395 | 229 | 119 | 171.4 | 317.5 | 82.6 | 13 | 12 | 1 3/8 | 260 | 1 1/2 | M36 | 75 |
| 8 | 200 | 485 | 292 | 143 | 222.2 | 393.7 | 92.1 | 13 | 12 | 1 5/8 | 290 | 1 3/4 | M42 | 118 |
| 10 | 250 | 585 | 368 | 178 | 277.4 | 482.6 | 108 | 13 | 12 | 1 7/8 | 335 | 2 | M48 | 198 |
| 12 | 300 | 675 | 451 | 219 | 328.2 | 571.5 | 123.9 | 13 | 16 | 2 | 375 | 2 1/8 | M52 | 264 |
| 14 | 350 | 750 | 495 | 241 | 360.2 | 635 | 133.4 | 13 | 16 | 2 1/4 | 405 | 2 3/8 | M56 | 341 |
| 16 | 400 | 825 | 552 | 260 | 411.2 | 704.8 | 146.1 | 13 | 16 | 2 1/2 | 445 | 2 5/8 | M64 | 454 |
| 18 | 450 | 915 | 597 | 276 | 462.3 | 774.7 | 162 | 13 | 16 | 2 3/4 | 495 | 2 7/8 | M72 | 590 |
| 20 | 500 | 985 | 641 | 292 | 514.4 | 831.8 | 177.8 | 13 | 16 | 3 | 540 | 3 1/8 | M76 | 792 |
| 24 | 600 | 1170 | 762 | 330 | 616 | 990.6 | 203.2 | 13 | 16 | 3 1/2 | 615 | 3 5/8 | M90 | 1248 |
Class 2500 Lap Joint Flange Dimensions
| Size in Inch | Size in mm | Outer Diameter | Flange Thick. | Lapped Thick. | Lapped ID | PCD | Lapped Thick. | Lapped Radius | No of Bolts | Bolt Size UNC | RF Stud Length | Hole Size | ISO Stud Size | Weight in kg |
|---|---|---|---|---|---|---|---|---|---|---|---|---|---|---|
| A | B | C | D | E | G | |||||||||
| 1/2 | 15 | 135 | 43 | 40 | 22.9 | 88.9 | 30.2 | 3 | 4 | 3/4 | 120 | 7/8 | M20 | 3.2 |
| 3/4 | 20 | 140 | 51 | 43 | 28.2 | 95.2 | 31.8 | 3 | 4 | 3/4 | 125 | 7/8 | M20 | 3.7 |
| 1 | 25 | 160 | 57 | 48 | 34.9 | 108 | 35 | 3 | 4 | 7/8 | 140 | 1 | M24 | 5 |
| 1 1/4 | 32 | 185 | 73 | 52 | 43.7 | 130.2 | 38.1 | 5 | 4 | 1 | 150 | 1 1/8 | M27 | 7.5 |
| 1 1/2 | 40 | 205 | 79 | 60 | 50 | 146 | 44.5 | 6 | 4 | 1 1/8 | 170 | 1 1/4 | M30 | 10 |
| 2 | 50 | 235 | 95 | 70 | 62.5 | 171.4 | 50.9 | 8 | 8 | 1 | 180 | 1 1/8 | M27 | 17.5 |
| 2 1/2 | 65 | 265 | 114 | 79 | 75.4 | 196.8 | 57.2 | 8 | 8 | 1 1/8 | 195 | 1 1/4 | M30 | 23 |
| 3 | 80 | 305 | 133 | 92 | 91.4 | 228.6 | 66.7 | 10 | 8 | 1 1/4 | 220 | 1 3/8 | M33 | 37.8 |
| 4 | 100 | 355 | 165 | 108 | 116.8 | 273 | 76.2 | 11 | 8 | 1 1/2 | 255 | 1 5/8 | M39 | 57 |
| 5 | 125 | 420 | 203 | 130 | 144.4 | 323.8 | 92.1 | 11 | 8 | 1 3/4 | 300 | 1 7/8 | M45 | 95 |
| 6 | 150 | 485 | 235 | 152 | 171.4 | 368.3 | 108 | 13 | 8 | 2 | 345 | 2 1/8 | M52 | 148 |
| 8 | 200 | 550 | 305 | 178 | 222.2 | 438.2 | 127 | 13 | 12 | 2 | 380 | 2 1/8 | M52 | 221 |
| 10 | 250 | 675 | 375 | 229 | 277.4 | 539.8 | 165.1 | 13 | 12 | 2 1/2 | 490 | 2 5/8 | M64 | 425 |
| 12 | 300 | 760 | 441 | 254 | 328.2 | 619.1 | 184.2 | 13 | 12 | 2 3/4 | 540 | 2 7/8 | M72 | 500 |
Major Lap Joint Pipe Flanges Export Countries
United Arab Emirates (UAE), Jordan, Bahrain, Kuwait, Oman, Qatar, Saudi Arabia, United States of America (USA), Singapore, Malaysia, Azerbaijan, Armenia, Georgia, Egypt, Algeria, Nigeria, South Africa, Kenya, Morocco, Ethiopia, Ghana, Tanzania, Sudan, Uganda, Angola.












